Tiny Home Auction Live with Online Prebidding

Ended: August 26, 2017, 12PM CT

Want to help turn one Tiny Home into four?

On August 26, Occupy Madison will host a special auction with unique home furnishings and decor, including a luxury custom-built tiny home. The event, which will feature celebrity auctioneer State Representative Chris Taylor, will raise funds for needed renovations to the OM Village site.

Currently, OM Village includes five Tiny Homes for formerly homeless residents, plus a woodworking shop, store, raised bed gardens and bee hives. After adding a kitchen and community space and making other renovations, OM Village can include up to nine Tiny Homes. This expansion will allow four more people to enjoy safe, secure housing in a supportive community.

Live auction with online prebidding. Online bidding will end August 26th at 10:00AM.

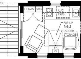
Tiny Home: The Centipede (sen-tuh-peed), known for its common name of “100 legs” defines this travel trailer or tiny home by the square foot alone. Don’t let its size fool you because this 100 square foot tiny home offers a hinged deck with swinging glass entry doors, giving you the chance to sit and stare all day or night long! Glancing at the outside, the Centipede’s single sloped roof line and multiple exterior finishes may give the impression that there is no space inside. However, the loft bedroom, loft storage and the rolling ladder will prove you wrong as we enter this tiny home. Another deception of the Centipede’s outside size is the toilet and shower built underneath the loft storage space. The large skylight illuminates the main area which includes a mini fridge, a custom closet area, a couch or love seat, a retractable kitchen table and built in shelves! With the centipede being considered one of the oldest known animals on the planet, it is no wonder why we named this tiny home after it. Wherever your home take you , be it prairies, savannas, tropical rain forests, or if you prefer urban areas close to other humans, the Centipede definitely lives up to its name. http://www.utopian-villas.com/centipede/

Chicken Coop - Want a regular-sized chicken coop with Tiny Home charm for your feathered friends? This hand-crafted coop has a metal roof, off-the-ground construction with multiple windows for excellent ventilation, and a sturdy frame and hardware cloth screening for poultry protection. An outside lid makes collecting eggs from the nesting boxes easy, and latched door allows access for coop cleaning. The clucky coop residents will enjoy sauntering up the ramp to their chicken-sized entry.

Tiny free library - This Handcrafted Solidarity Little Free Library was built at OM Village and ready to be the center piece of your house or business

2 Wisconsin backed cedar Adirondack chairs - Bid on this beautiful pair of cedar Adirondack chairs and rest your back on the map of Wisconsin. These chairs were constructed at OM Village and even have turquoise inlay to display the Mississippi river on the Wisconsin shaped back.

Terms: 5% buyers fee added to winning bid. 5.5% sales tax. All items sold AS IS. Announcements made the day of auction have precedence over prior advertisements.

tiny-houses

Auction Terms

Terms: 5% buyers fee added to winning bid. 5.5% sales tax. All items sold AS IS. Announcements made the day of auction have precedence over prior advertisements.

All Items Sold As-Is with no warranties expressed or implied

Pickup Information

At live auction
304 N Third St Madison , WI 53704
Preview Date: NA